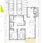
- Tres (3) amplias recámaras.
- Dos (2) baños completos.
- Cocina cerrada, de estilo europeo.
- Sala – Comedor.
- Lavandería techada.
- Dos (2) estacionamientos techados.
- Puertas de seguridad y rejas.
- Espectacular fachada.
- Los mejores y más modernos acabados.
- Lotes desde 160m2.








